Balassi Bálint utca, 5. kerület
Két hálószobás ELADÓ a Duna és a Parlament mellett
Történelmi terület a belvárosban a Duna mellett
397 000 EUR
vagy
154 900 000 HUF
vagy
Ingatlanügynök
Az ingatlanról
Állapot:
Felújított
Apartman típusa:
Felújított apartman
Hálószobák:
2
Fürdőszoba:
1
Emelet:
2
Alapterület:
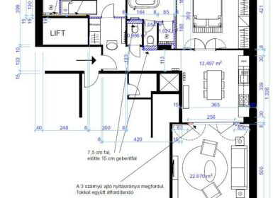
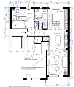
83 m2
Erkély:
4 m2
Anyaga:
tégla
Kilátás:
panoráma
Szobák száma:
3
Közös költség:
20000 HUF
Rezsi:
20000 HUF
Vendég WC:
Van
Lift:
Van
Leírás
Tulajdonostól eladó egy néhány éve teljesen felújított és luxusszinten átépített 83 nm-es 2 szobás lakás, közvetlenül a Parlament és a Duna-part mellett, a Kossuth Lajos tér sarkán, Pest egyik legikonikusabb épületében, az V. kerületi Biarritz-házban. Az ingatlanban egy étkező, amerikai konyhás, nappalival összenyitható étkező és 2 hálószoba található. Mindkét hálószobához saját fürdőszoba tartozik. A nappaliból nyíló erkélyről a Parlament és a Balassi Bálint utca látható.
Az apartman az 1. emeleten található, ami valójában a 2. emeletnek felel meg.
Az ingatlan lakásként és irodaként is használható, és jelenleg irodaként funkcionál.
A terület a központi történelmi elhelyezkedése miatt nagyon népszerű: A Parlament a következő sarkon van, a Duna is az épület mellett van. Nagyszerű befektetés bérbeadásra Budapesten: külföldiek szívesen bérelnek itt lakást, és irodának is kiadható.
A tömegközlekedés kiváló: a 2-es metró (Kossuth Lajos tér) megállója 5 perc sétára, a 2-es és a 24-es villamos megállója az épület mellett található. A 4/6-os villamos megállója (Jászai Mari tér) szintén csak néhány perc sétára van.
Szerezz friss információt a budapesti ingatlanokról
Helyszín
Kerület
Közeli egyetemek
Tömegközlekedés
2-es villamos
4-6-os villamos















